
生活

信息

|
1667| 0
|
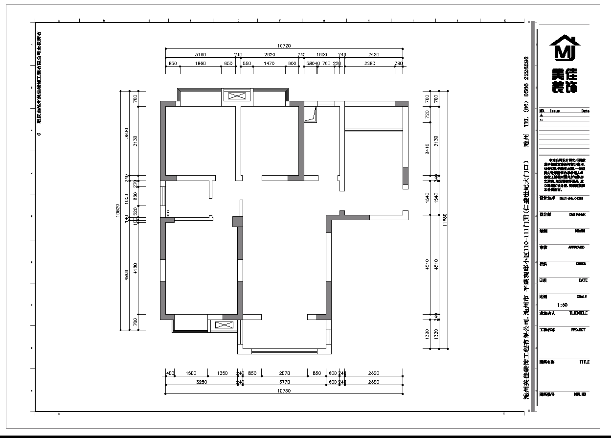
[装修交流] 【家装设计大赛·参赛作品】⑥号报名设计师美佳装饰顾维意 |
| ||
|
上人网 知池州 惠生活 欢迎下载池州人网APP
|
||
手机版|关于我们|联系我们|投诉删帖|池州人网
( 皖B2-20190096 )
侵权举报:本页面所涉内容为用户发表并上传,相应的法律责任由用户自行承担;本网站仅提供存储服务;如存在侵权问题,请权利人与本网站联系删除!举报电话:0566-3396977
GMT+8, 2025-12-12 07:05
Powered by Discuz! X3.4 Licensed
© 2001-2023 Discuz! Team.